HOME > 物件詳細
 
お問い合わせ 印刷ページ  
 
中古一戸建て (売買)   物件番号 KCHK6358
  価格:980万円

住所:交野市幾野3丁目
交通1:京阪交野線 郡津 徒歩17分
 

 
LDK キッチン 洗面所 和室
 
ポイント ★価格変更★☆一戸建て感覚のコーポラティブハウス!☆専有面積95.08uの3LDK!☆シャッター付き駐車場!
☆南面ルーフバルコニー!スロップシンクあり!☆1階・3階にトイレあり!☆鉄筋コンクリート造!
 
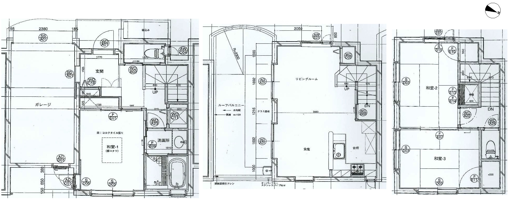
間取り 3LDK 間取り詳細 階数 3階建て
土地面積 1763.17u(533.35坪) 建物面積 95.08u(28.76坪) 各階面積
土地権利 定期借地権 構造 RC(鉄筋コンクリート) 築年月 2001年04月
地目 用途地域 第一種住居地域 都市計画 市街化区域
建ぺい率 容積率 接道状況
駐車場 主要採光面 私道負担
現況 空家 引渡 即時 地勢・高低差
通学区(小学校) 郡津小学校徒歩13分 通学区(中学校) 第二中学校徒歩4分 取引態様 仲介
条件 ●「シティフラッツ交野」中古タウンハウス(全21戸の区分所有による集合住宅) ●定期借地契約(借地存続期間2060年1月22日迄) ●敷地建割合共有持分:6457 / 141169  ●管理組合有り(自主管理)                                                    ●管理費:1,000円/月・修繕積立金:12,190円/月・地代:19,900円/月・解体積立金:2,030円/月                                           ●分譲会社:シティフラッツ交野建設組合・施工会社:株式会社前田組 
設備 電気・都市ガス・上水道・下水道
リフォーム履歴
※各種情報と現況に差異がある場合がございます。
お問い合わせ 印刷ページ