|
|
| |
|
★
ポイント
|
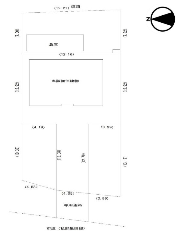
☆土地面積約120坪!☆LDK広々20帖!☆全居室6帖以上!☆全居室収納・納戸3帖など収納豊富! ☆西・東の両面道路に面している明るい住宅です!
|
|
|
| |
|
|
|
| 間取り |
4SLDK |
間取り詳細 |
●1階/LDK20、和8 ●2階/洋6×2、洋8、納戸3 |
階数 |
2階建て |
| 土地面積 |
公簿 396.68u(119.99坪) |
建物面積 |
131.22u(39.69坪) |
各階面積 |
1階76.14u、2階55.08u |
| 土地権利 |
所有権 |
構造 |
木造 |
築年月 |
2002年05月 |
| 地目 |
宅地 |
用途地域 |
|
都市計画 |
市街化調整区域 |
| 建ぺい率 |
60% |
容積率 |
200% |
接道状況 |
方向:西/東 幅員:5.0m/2.7m |
| 駐車場 |
有 |
主要採光面 |
|
私道負担 |
無し |
| 現況 |
居住中 |
引渡 |
相談 |
地勢・高低差 |
平坦 |
| 通学区(小学校)
| 藤が尾小学校徒歩3分 |
通学区(中学校)
| 第四中学校徒歩15分 |
取引態様 |
仲介 |
| 条件
| ●倉庫有り(未登記) |
| 設備
| プロパンガス・個別浄化槽 |
| リフォーム履歴
| |
|
|
※各種情報と現況に差異がある場合がございます。
|
|
|
|
| |
| |
| |
|
|