|
|
| |
|
★
ポイント
|
★価格変更★☆収納豊富な4LDK!☆南向きにつき陽当たり良好!☆前面道路広々8.3m! ☆太陽光発電+エネファーム設置!災害・停電時の電力を確保できます!☆耐震等級2・断熱等性能等級4! ◆システムキッチン(食器洗い乾燥機・カップボード・静音シンク・シャワー水栓・パントリー) ◆洗面室にガス乾燥機 ◆システムバス(浴室暖房乾燥機・コンフォートウエーブシャワー・カラリ床) ◆洗浄機能付き節水トイレ(壁付けリモコン・便座ヒーター) ◆外壁パワーボード・複層ガラス・玄関扉タッチキー・床暖房・アクセントクロス(各居室、トイレ、洗面室)
|
|
|
| |
|
|
|
| 間取り |
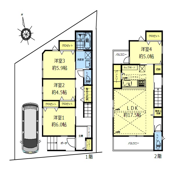
4LDK |
間取り詳細 |
●1階/洋4.5、洋5.9、洋6 ●2階/LDK17.5、洋5 |
階数 |
2階建て |
| 土地面積 |
127.52u(38.57坪) |
建物面積 |
98.30u(29.73坪) |
各階面積 |
|
| 土地権利 |
所有権 |
構造 |
木造 |
築年月 |
2026年01月 |
| 地目 |
宅地 |
用途地域 |
第二種中高層住居専用地域 |
都市計画 |
市街化区域 |
| 建ぺい率 |
60% |
容積率 |
200% |
接道状況 |
方向:南側 幅員:8.3m |
| 駐車場 |
有 |
主要採光面 |
南 |
私道負担 |
無し |
| 現況 |
空家 |
引渡 |
相談 |
地勢・高低差 |
|
| 通学区(小学校)
| 妙見坂小学校徒歩8分 |
通学区(中学校)
| 第三中学校徒歩13分 |
取引態様 |
仲介 |
| 条件
| ●JR学研都市線「星田」駅 自転車約6分 |
| 設備
| 都市ガス・公営水道・公共下水 |
| リフォーム履歴
| |
|
|
※各種情報と現況に差異がある場合がございます。
|
|
|
|
| |
| |
| |
|
|