|
|
| |
|
★
ポイント
|
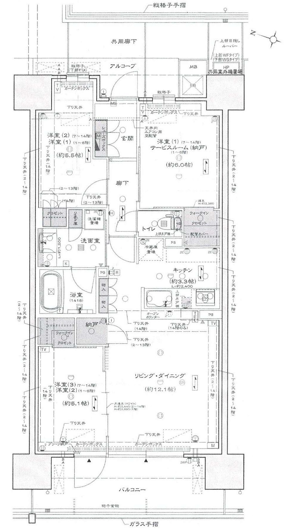
☆JR学研都市線「星田」駅徒歩3分!☆2024年12月建築!☆5階部分につき眺望良好!☆ペット可(規約あり)! ☆大型商業施設『トナリエ星田』に隣接した生活便利な立地です!
|
|
|
| |
|
|
|
| 管理費等 |
11,700円 |
修繕積立金 |
7,200円 |
所在階 / 階数 |
5階 / 15階建て |
| 間取り |
3LDK 詳細:LD12.1、K3.3、洋5.1、洋5.5、洋6 |
構造 |
RC(鉄筋コンクリート) |
総戸数 |
225戸 |
| 専有面積 |
71.22u(21.54坪) |
バルコニー面積 |
11.68u(3.53坪) |
主要採光面 |
西 |
| 土地権利 |
所有権 |
築年月 |
2024年12月 |
駐車場 |
|
| 現況 |
居住中 |
管理会社 |
関電コミュニティ(株) |
管理方式 |
全部委託・日勤 |
| 分譲会社 |
関電不動産開発(株) |
施工会社 |
(株)長谷工コーポレーション |
引渡 |
相談 |
| 通学区(小学校)
| 藤が尾小学校徒歩14分 |
通学区(中学校)
| 第四中学校徒歩24分 |
取引態様 |
仲介 |
| 条件
| ●インターネット使用料:2,189円/月 |
| 設備
| 公営水道・公共下水 |
| リフォーム履歴
| |
|
|
※各種情報と現況に差異がある場合がございます。
|
|
|
|
| |
| |
| |
|
|